×ðÁú¿­Ê±

½¨Í¶¶¯Ì¬

¹«Ë¾ÒªÎÅ

ÐÂÎÅÖÐÐÄ
¹úÆó×ÊѶ
¹«Ë¾ÒªÎÅ

ÓÉɽÎ÷½¨Í¶×ܳаü¹«Ë¾ÊµÑéµÄɽÒõÏØÄÏÕ¾Æ¬ÇøÅÅË®¹ÜÍø¹¤³ÌÊǰü¹Ü¸ßÌúÔËÐÐÇå¾²¡¢¸ùÖÎÏØ³ÇÄÚÀÔµÄÒªº¦ÃñÉú¹¤³Ì¡£¡£¡£¡£ÏîÄ¿Ö÷Òª°üÀ¨ÏÖÓÐÐîË®³ØË¢ÐÂÉý¼¶¡¢3585.6Ã×µÄÅÅˮϵͳн¨µÈ¡£¡£¡£¡£ÏîÄ¿½¨³Éºó£¬£¬½«»Ý¼°¸ßÌúÄÏÕ¾Æ¬Çø¼°Öܱß10¸öÉçÇø¡¢12ËùѧУ¡¢Ô¼25ÍòסÃñ¡£¡£¡£¡£

8AEEF

ɽÒõÏØÄÏÕ¾Æ¬ÇøÅÅË®¹ÜÍø¹¤³Ì×ÜÆ½Ãæ°²ÅÅͼ

¿Æ¼¼¹¥¼áÆÆÄÑÌâ ÇÉ½âµØÏ¡°Ç§Ç§½á¡±

ÄÏÕ¾Æ¬ÇøµØÖÊÌõ¼þÖØ´ó£¬£¬ÊªÏÝÐÔ»ÆÍÁÂþÑÜÆÕ±éÇÒµØÏÂˮλ½Ï¸ß£¬£¬ÓÈÆäÊÇÏà½üÉ£¸ÉºÓ¹ú¼ÒʪµØ¹«Ô°µÄÇø¶Î£¬£¬Ê©¹¤ÖÐÃæÁٵػù³Á½µºÍ»ù¿ÓÓ¿Ë®µÄË«ÖØÎ£º¦¡£¡£¡£¡£Õë¶ÔÕâÒ»ÄÑÌ⣬£¬ÏîÄ¿ÍŶÓÔËÓÃÎÞÈË»ú¸ß¾«¶ÈÈýάɨÃèÊÖÒÕ£¬£¬Í¨¹ý¼¤¹âÀ×´ïºÍÇãбÉãÓ°£¬£¬¿ìËÙ»ñȡʩ¹¤ÇøÓòµÄ¸ß³Ì¡¢ÆÂ¶ÈµÈÒªº¦Êý¾Ý£¬£¬ÎªºóÐøÊ©¹¤ÌṩÁ˿ɿ¿µÄÊý¾ÝÖ§³Ö¡£¡£¡£¡£ÊµÑ顰Ƭʯ¼·ÓÙ+¼¯Ë®¾®½µË®¡±µÄ×ۺϼƻ®£¬£¬Ò»·½ÃæÍ¨¹ýÅ×ÌîÆ¬Ê¯Öû»ÈíÍÁ²ãÌáÉýµØ»ù³ÐÔØÁ¦£¬£¬ÁíÒ»·½Ãæ×ðÁú¿­Ê±¼¯Ë®¾®ÏµÍ³ÓÐÓÿØÖƵØÏÂˮ룬£¬Ðν¨ÉèÌå·À»¤ÏµÍ³£¬£¬Àֳɽ«µØ»ù³Á½µ¿ØÖÆÔÚÔÊÐí¹æÄ£ÄÚ£¬£¬»ù¿ÓÓ¿Ë®Á¿´ó·ù½µµÍ£¬£¬ÎªºóÐøÖ÷Ì幤³ÌÊ©¹¤´´Á¢ÁËÇå¾²Îȹ̵Ä×÷ÒµÇéÐΡ£¡£¡£¡£

23A0

ÖܱߵØÏ¹ÜÏߺÍÏ亭ʾÒâͼ

Æ¬ÇøµØÏ¹ÜÏß´í×ÛÖØ´ó£¬£¬¹Å°å̽²âÒªÁì±£´æÒÅ©Σº¦£¬£¬Ê©¹¤³åÍ»Òþ»¼Í»³ö¡£¡£¡£¡£ÃæÁÙÕâÒ»ÌôÕ½£¬£¬ÏîÄ¿ÍŶÓÁ¢Òì½ÓÄɿƼ¼+È˹¤Ë«¹ì̽²âģʽ¡£¡£¡£¡£Ò»·½ÃæÔËÓÃʵʱ¶¯Ì¬²î·ÖÕÉÁ¿ÊÖÒÕ£¨RTK£©£¬£¬Í¨¹ýÎÀÐÇÓëµØÃæ»ù׼վЭͬ¶¨Î»£¬£¬ÊµÏָ߾«¶È¹ÜÏß×ø±êÊÕÂÞ£¬£¬¸ßЧÍê³É´ó¹æÄ£ÆÕ²é£» £»£»ÁíÒ»·½Ã渨ÒÔÈ˹¤ÃþÅÅ£¬£¬Í¨¹ý̽¹µ¿ªÍںͷǽðÊô̽²âÒÇÑéÖ¤£¬£¬¾«×¼ÕÆÎÕÖØ´óÇøÓò¼°·Ç½ðÊô¹ÜÏߵĿռäÂþÑÜ¡£¡£¡£¡£» £»£»ùÓÚÍêÕû׼ȷµÄ¹ÜÏßÊý¾Ý£¬£¬ÍŶӹ¹½¨Èýάʩ¹¤Ä£Äâϵͳ£¬£¬¶¯Ì¬ÓÅ»¯»úе×÷ҵ·¾¶¡£¡£¡£¡£¾­ÓɶàÂּƻ®±ÈÑ¡£¬£¬ÀÖªϰ±Ü6ÌõÒªº¦½»Ö¯¹ÜÏߣ¬£¬ÊµÏÖÊ©¹¤ÁãÆÆË𡣡£¡£¡£¸Ã¼Æ»®¼È°ü¹ÜÁËÊÐÕþ»ù´¡ÉèÊ©Çå¾²ÔËÐУ¬£¬ÓÖ×î´óÏÞ¶ÈïÔÌ­Á˶ÔסÃñÉúÑĵÄ×ÌÈÅ¡£¡£¡£¡£

ӭսѴÆÚ±£½ø¶È ϸÄåÖÎÀí»¤ÃñÉú

ÏÄÈÕÆµÈÔ½µÓêÊÇÖÆÔ¼¹¤³Ì½ø¶ÈµÄ¡°À¹Â·»¢¡±£¬£¬¹Å°å¿ªÍÚÇåÓÙ³£±»ÆÈÖÐÖ¹¡£¡£¡£¡£ÎªÆÆ½âÓ꼾ʩ¹¤À§¾Ö£¬£¬ÏîÄ¿ÍŶӽÓÄÉ¡°·Ö¶Î¿ªÍÚ+¸ßЧ³éÅÅ¡±ÊÖÒռƻ®¡£¡£¡£¡£¸Ã¼Æ»®Í¨¹ýÔÚ×÷ÒµÇþ¶ÎÁ½²àÐÞ½¨0.5Ã׸߷ÀÉøÎ§Ñߣ¬£¬²¢°²ÅÅ×ܳéË®ÄÜÁ¦´ï400Á¢·½Ã×/СʱµÄË®±Ã×飬£¬ÓÐÓýâ¾öÁËÓ꼾ʩ¹¤ÄÑÌ⣬£¬µ¥ÈÕÇåÓÙÁ¿ÌáÉýÖÁ500Á¢·½Ã×£¬£¬Ð§ÂÊÌá¸ßÔ¼50%¡£¡£¡£¡£×èÖ¹ÏÖÔÚ£¬£¬ÒÑÀÛ¼ÆÍê³É2.8¹«ÀïÇþ¶Î3.3ÍòÁ¢·½Ã×ÓÙÄàÕûÀíÊÂÇ飬£¬ÓÐÁ¦Íƶ¯Á˹¤³ÌÕûÌåÏ£Íû¡£¡£¡£¡£

5C887

Çå¾²Éú²úÓ¦¼±ÑÝÁ·

Õë¶ÔÑ´ÆÚ¿ÉÄÜÒý·¢µÄ»ù¿Ó»ýË®¡¢±ßÆÂʧÎȵȴÎÉúΣº¦£¬£¬ÍŶӽ¨É轡ȫ¡°ÆøÏóÔ¤¾¯¡ªÎï×Ê´¢±¸¡ªÓ¦¼±ÏìÓ¦¡±¿ìËÙÁªÄîÍ·ÖÆ¡£¡£¡£¡£ÏÖ³¡³£±¸É³´ü1000´ü¡¢³éË®±Ã12̨¡¢·ÀÓê²¼500ƽ·½Ã׵ȷÀÑ´Îï×Ê£¬£¬²¢È·±£ÆøÏóÔ¤¾¯Ðû²¼ºó30·ÖÖÓÄÚ·À»¤²½·¥ÖÜÈ«µ½Î»¡£¡£¡£¡£Í¬Ê±£¬£¬°´ÆÚ×éÖ¯·ÀÑ´¼°»ù¿ÓÌ®ËúµÈÓ¦¼±ÑÝÁ·£¬£¬Ò»Á¬ÌáÉýÍŶÓЭͬ×÷Õ½ºÍʵս´¦Öóͷ£ÄÜÁ¦£¬£¬ÎªÑ´ÆÚÊ©¹¤Çå¾²ÐÞ½¨Á˼áʵ·ÀµØ¡£¡£¡£¡£

34EE1

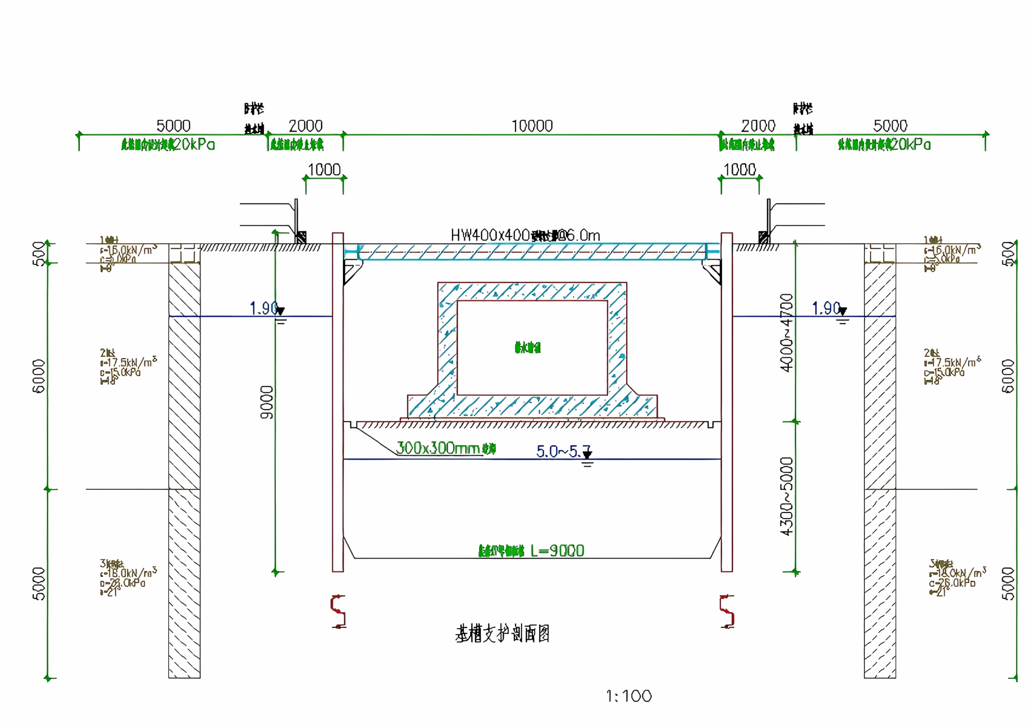
¸Ö°å×®Ö§»¤Éè¼ÆÍ¼

¹¤³Ì´©Ô½×¡Ãñ¸û×÷ÇøÊ±£¬£¬ÏîÄ¿ÍŶÓÑÏ¿á×ñÕÕ¡°×îС»¯ÈÅÃñ¡¢×î´ó»¯»ÝÃñ¡±Ô­Ôò£¬£¬½ÓÄÉ9Ã׳¤¸Ö°å×®ÐγÉÒ»Á¬Ö§»¤½á¹¹£¬£¬ÆäÖÐ6Ã×ÉîÈëÎȹÌÍÁ²ã£¬£¬Í¨¹ý×®ÍÁĦ²ÁÁ¦ºÍ±»¶¯ÍÁѹÁ¦ÌṩÎȹÌÖ§³Ö£¬£¬µØÃæ3Ã×¶ͷ²¿·ÖÓëÄÚ²¿Ö§³ÖϵͳЭͬ×÷Ó㬣¬È·±£±ßÆÂÕûÌåÎȹÌ¡£¡£¡£¡£Í¬²½ÊµÑéµÄ¾«×¼¿ØË®ÊÖÒÕ£¬£¬Í¨¹ýÂñÉèˮλ¼à²â´«¸ÐÆ÷¶¯Ì¬µ÷¿Ø½µË®¾®ÔËÐУ¬£¬½«µØÏÂˮλ¿ØÖÆÔÚ¸û×÷²ãÒÔÏ£¬£¬¼È×èÖ¹ÁËÍÁÈÀÁ÷ʧ£¬£¬ÓÖ±£» £»£»¤Á˸û×÷²ã½á¹¹ÍêÕû¡£¡£¡£¡£Îª½µµÍÊ©¹¤¶ÔÖܱßÇéÐεÄÓ°Ï죬£¬ÍŶÓÑÏ¿áÏÞÖÆÖ÷Òª×÷ҵʱ¶Î£¬£¬²¢Å䱸3̨ÎíÅÚ»úÒ»Á¬ÒÖ³¾£¬£¬Á¬Ïµ×¼Ê±È÷Ë®Çåɨ²½·¥£¬£¬ÓÐÓÿØÖÆÁËÔëÒôºÍÑï³¾ÎÛȾ£¬£¬½«¹¤³Ì¶ÔÉ£¸ÉºÓʪµØ¼°×¡ÃñÉúÑĵÄÓ°Ïì½µÖÁ×îµÍ¡£¡£¡£¡£

ÏÖÔÚ£¬£¬¹¤³ÌÖ÷Ìå×ðÁú¿­Ê±½ø¶È´ï95%£¬£¬ÒÑÍê³É2.8¹«Àï°µº­Ö÷Ìå½½Öþ¼°14×ù¼ì²é¾®×°Ö㬣¬Á¥Êô×°±¸Ô¤ÂñÊÂÇéÕý¸ßÐ§ÍÆ½ø¡£¡£¡£¡£ÏÂÒ»²½£¬£¬¹«Ë¾½«Í¨¹ýÓÅ»¯Ê©¹¤×éÖ¯£¬£¬È«Á¦³å´Ì×îÖÕÒâ»áÄ¿µÄ¡£¡£¡£¡£

¡¾ÍøÕ¾µØÍ¼¡¿¡¾sitemap¡¿